Jindřichův Hradec Radouňka, Ke Škole 23
15 bytových jednotek
grilovací pergola pro rezidenty
O nás
Rezidence Radouňka, Jindřichův Hradec
Rezidence Radouňka je situována v jedné z malebných okrajových částí Jindřichova Hradce. Díky absolutnímu klidu v uzavřeném areálu si mohou nájemníci maximálně užívat odpočinku a čerpat energii z krásného prostředí, vzrostlé zeleně a téměř parkové úpravy v těsné blízkosti svého bydlení.
Místní část Radouňka je součástí Jindřichova Hradce a lze tedy využít spojení MHD do centra města, případně si udělat krásnou procházku a za 25 minut si již užívat ruchu romantického historického centra Jindřichova Hradce.
O projektu
O projektu
Celý objekt rezidence Radouňka byl celkově rekonstruován v roce 1999, v dalších etapách byla postavena zcela nová část budovy, tato výstavba byla dokončena v roce 2005. Do roku 2014 byl celý objekt využíván jako reprezentativní sídlo obchodní společnosti. V roce 2019–2020 prošel objekt zcela zásadní rekonstrukcí interiérů a společných prostor pro současné nájemníky. Rekonstrukce proběhla pod dohledem architekta tak, aby v exteriérech zůstala zachována tradice venkovského bydlení a interiéry tvořily moderní celek pro nejnáročnější klienty.
Rezidence Radouňka vznikla pečlivou interiérovou rekonstrukcí areálu o celkové výměře 6.500 m2 a zastavěnou plochou 1.100 m2. V celé rezidenci je k dispozici celkem 15 bytů s výměrou od 35 do 82 m2, dále pak společná grilovací pergola a v neposlední řadě společenská místnost / bývalá restaurace U Rytíře /, kterou mohou rezidenti využívat například k rodinným oslavám či dalšímu společenskému dění v domě. Součástí rezidence jsou i parkovací stání v uzavřeném areálu, pro byty s výměrou do 60 m2 je k dispozici jedno parkovací stání, pro byty nad 60 m2 mohou nájemníci využívat parkovací stání dvě.
Všechny byty jsou zcela nové vč. kuchyňské linky se spotřebiči a vybavením koupelny / koupelnová skříňka, masážní sprchový kout atd. / V přízemí se nachází převážně byty s vyšší výměrou, v prvním podlaží pak moderní podkrovní byty s velmi nadstandardní výškou tak, aby šikmina střechy neomezovala využití jednotlivých bytů. Interiéry bytů byly rekonstruovány pod dohledem architekta s cílem zajistit co nejmodernější a nejkvalitnější bydlení.
Součástí areálu je již zmíněná pergola pro venkovní grilování a v těsné blízkosti i dětské hřiště. Celý projekt je realizován pouze pro nájemní bydlení s nadstandardními službami v ceně nájmu / parkování, úklid společných prostor, péče o zeleň, služba údržby domu do 24 hodin /. Pro nejnáročnější klienty je zajištěn úklid bytů, případně také praní a žehlení.
Zajímavostí celého projektu je výrazná snaha investora, společnosti IKP IMMO s.r.o.,o zachování maximálního soukromí pro jednotlivé nájemníky, některé byty například nevyužívají žádné sdílené prostory, ale naopak mají zcela samostatný vstup. Tento model bydlení patří společně s úsilím o dosažení maximálně komfortního bydlení se zajištěnými službami k hlavní strategii této společnosti a bude nedílnou součástí jejích dalších projektů.
Investor

Společnost IKP IMMO založili a vlastní manželé Karel a Ivana Pilní. Záměrem celého investičního projektu bylo vybudovat v Jindřichově Hradci komplex rezidenčního bydlení, který nabídne pro své klienty zázemí hodné 21. století a bude přesně splňovat potřeby aktivních lidí, kteří jsou vytížení jak v pracovním, tak v osobním životě a hledají útočiště, kde si skvěle odpočinou a najdou potřebný klid.
„Sami jsme v podobném projektu měli pronajatý svůj první byt. Bydleli jsme v Humpolci v krásném prostředí nejen bytu, ale hlavně jeho těsného okolí. Díky uzavřenému areálu jsme měli absolutní klid, majitel byl veselý a vstřícný chlapík, který byl dlouhá léta naším rodinným přítelem. Chtěli jsme stejný komfort a péči dopřát i našim nájemníkům a jsme přesvědčeni, že za cenu podprůměrného panelákového bytu na neosobním sídlišti se jim u nás dostává neporovnatelně vyšší kvalita bydlení a díky tomu i vyšší kvalita života.“
Příběh Radouňka
Radouňka je kouzelné místo. V objektu, který se nachází na adrese Ke Škole 23 jsme byli poprvé v roce 2014. Překvapilo nás, že i když to bylo sídlo komerční obchodní firmy, působil celý objekt velmi přátelsky a sálala z něj přímo rodinná atmosféra. V roce 2016 jsme krátce využívali přízemní část objektu jako kanceláře. Tehdy jsme si na vlastní kůži vyzkoušeli genius loci Radouňky a když se v roce 2019 naskytla šance celý objekt koupit, tak jsme ani chvíli neváhali..
Cíl byl od počátku jasný. Vybudovat v Hradci krásné bydlení pro lidi, kterým není lhostejné, v jakém prostředí žijí. Měli jsme zcela jasnou představu, jak by takové bydlení mělo vypadat. Nechtěli jsme připravit pro nájemníky sterilní a neosobní byty, ale místo, kam se budou těšit, kam si rádi budou zvát své známé a přátele a kde budou třeba rádi vychovávat svoje děti. Proto jsme do přípravy projektu zapojili například Ing. Arch. Blanku Tancerovou, která nám pomáhala s naším vlastním bydlením a věděli jsme tedy, že umí vykouzlit nádherné interiéry a že dodá celému projektu moderní a svěží nádech. Protože naším cílem je i vysoký standard řemeslného zpracování, je generálním dodavatelem našich staveb společnost RM-BAU. Tato tradiční hradecká společnost je zárukou, že se nájemnici stěhují do krásných nových bytů a nemusí se trápit tím, že něco nefunguje nebo není řemeslně zpracováno tak, jak by si přáli.
„Sami jsme v podobném projektu měli pronajatý svůj první byt. Bydleli jsme v Humpolci v krásném prostředí nejen bytu, ale hlavně jeho těsného okolí. Díky uzavřenému areálu jsme měli absolutní klid, majitel byl veselý a vstřícný chlapík, který byl dlouhá léta naším rodinným přítelem. Chtěli jsme stejný komfort a péči dopřát i našim nájemníkům a jsme přesvědčeni, že za cenu podprůměrného panelákového bytu na neosobním sídlišti se jim u nás dostává neporovnatelně vyšší kvalita bydlení a díky tomu i vyšší kvalita života.“
Vaše moderní bydlení
Vybavení, služby
WiFi
Parkoviště
Péče o zeleň
Koupelny, masážní sprchový kout
Kuchyňská linka se spotřebiči
Dětské hřiště
Venkovní grilování
Úklid společných prostor
Kamerový systém
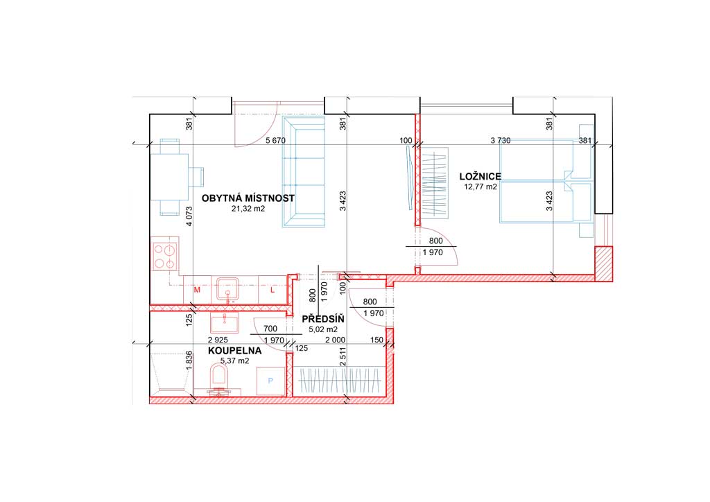
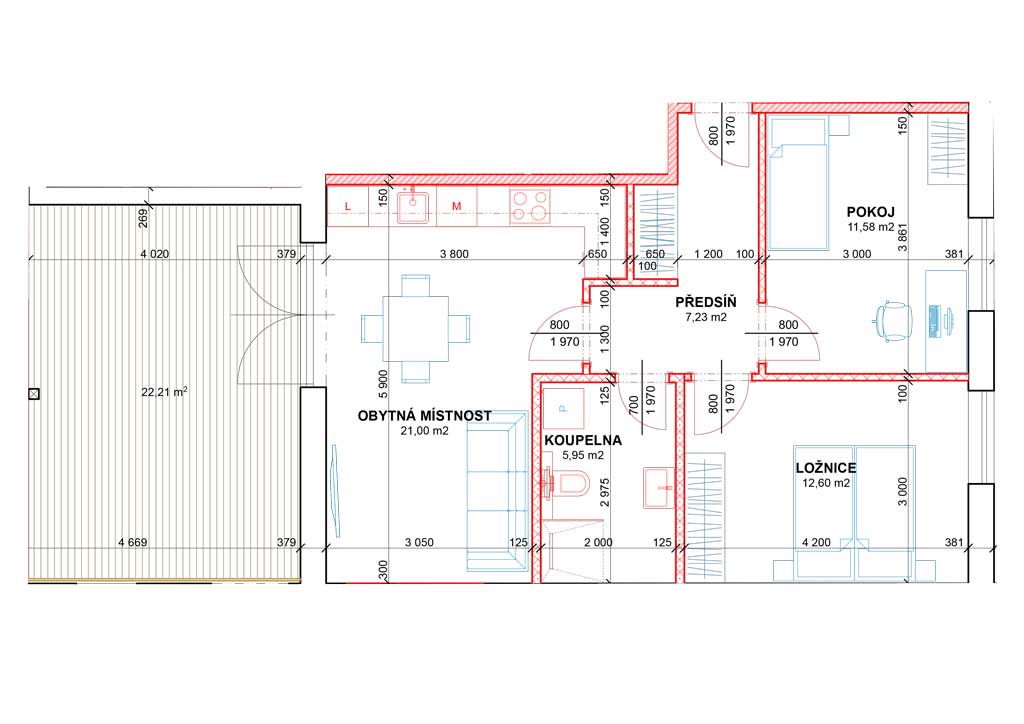
Přehled bytů
| Bytová jednotka | Dispozice | m2 | Možnost pronájmu zařízení bytu | Počet parkovacích stání k bytu | Nájem / měsíc |
|---|---|---|---|---|---|
| Byt č. 1, 1. podlaží | Garsoniera | 32 | ANO | 1 | 7.680 Kč |
| Byt č. 2, 1. podlaží | Garsoniera | 26 | ANO | 1 | 7.020 Kč |
| Byt č. 3, 1. podlaží | Garsoniera | 36 | ANO | 1 | 8.640 Kč |
| Byt č. 4, 1. podlaží | 3+KK | 74 | ANO | 2 | 17.760 Kč |
| Byt č. 5, 1. podlaží | 3+KK | 66 | ANO | 2 | 15.880 Kč |
| Byt č. 6, 2. podlaží | 2+KK | 49 | ANO | 1 | 11.760 Kč |
| Byt č. 7, 2. podlaží | 2+KK | 45 | ANO | 1 | 10.800 Kč |
| Byt č. 8, 2. podlaží | 2+KK | 63 | ANO | 2 | 15.120 Kč |
| Byt č. 9, 2. podlaží | Garsoniera | 25 | ANO | 1 | 7.500 Kč |
| Byt č. 10, 2. podlaží | 2+KK | 45 | ANO | 1 | 10.800 Kč |
| Byt č. 11, 2. podlaží | Garsoniera | 34 | ANO | 1 | 8.160 Kč |
| Byt č. 12, 2. podlaží | 2+KK | 62 | ANO | 1 | 14.880 Kč |
| Byt č. 13, 2. podlaží | 2+KK | 52 | ANO | 1 | 13.480 Kč |
| Byt č. 14, 2. podlaží | Garsoniera | 35 | ANO | 1 | 9500 Kč |
| Byt č. 15, 2. podlaží | 3+KK | 71 | ANO | 2 | 17.040 Kč |
| Byt č. 16, 1. podlaží | 3+KK | 80,5 | ANO | 1 | 18.500 Kč |
| Byt č. 17, 1. podlaží | 2+KK | 45 | ANO | 1 | 13.500 Kč |
| Byt č. 18, 1. podlaží | Garsoniera | 28 | ANO | 1 | 7.900 Kč |
Volný
Reference
Na Radouňce bydlím už čtvrtým rokem a neměnila bych
… Bydlení na Radouňce pro mě představuje ideální kompromis mezi bydlením ve městě a bydlením nedaleko přírody. Všude blízko. Bydlení je krásně moderně zařízené, vše příjemné a vzdušné. Velmi oceňuji vlastní parkovací místo v areálu. K tomu jako skvělá přidaná hodnota sympatičtí vždy ochotní majitelé a pohodoví sousedé. Prostě doma.
Hledali jsme klidné a nenáročné bydlení
… V roce 2020 jsme se společně s manželkou rozhodli, že už je na čase prodat náš milovaný rodinný dům a přestěhovat se do něčeho méně náročného na údržbu.
V této životní etapě již o každé velké změně dlouho přemýšlíte, zvažujete pro a proti a nejraději byste neměnili vůbec nic. Projekt Rezidence Radouňka přišel jako na zavolanou.
Majitelé nám nabídli prostorný bezbariérový byt, společně jsme vybrali nábytek do obývacího pokoje a předsíně a nám tak odpadla spousta starostí se zařizováním.
Manželka se nemusela vzdát ani svých balkonových květin, které jsou již neodmyslitelnou ozdobou průčelí našeho nového domova.
Na Radouňce jsem našla komfortní bydlení pro sebe i pro dceru
.. Hledala jsem místo, kde si budu moci po práci odpočinout, projít se psem, nebo se zavřít v garáži a pověnovat se mojí velké lásce – Kawasaki 500. Majitelé jsou také motorkáři, proto nám vyšli vstříc a kromě venkovního parkovacího stání můžeme my, příznivci jednostopých vozidel, využívat i garáž pro motorky. Dcera je tu také spokojená, městskou dopravou to má do centra Hradce 10 minut a já si tak mohu místo věčného taxikaření vyrazit třeba na podvečerní projížďku.
+420 739 657 952
Jindřichův Hradec Radouňka, Ke Škole 23
ivana.pilna@ikpimmo.cz
TO BY SE NÁM TAKÉ LÍBILO
Měli byste zájem?
Domluvte si nezávaznou konzultaci, seznámíme Vás s našimi dalšími projekty…
KONTAKT
IKP IMMO s. r. o.
Ke Škole 23
Jindřichův Hradec – Radouňka
E-mail: ivana.pilna@ikpimmo.cz
Tel.: +420 739 657 952
IČO: 080 03 131
Společnost IKP IMMO s.r.o. je zapsaná v obchodním rejstříku vedeném Krajským soudem v Českých Budějovicích, oddíl C, vložka 28653.
Číslo účtu: 7000069798/7940







